Moderne kontor med udsigt over Storkøbenhavn

I det attraktive og internationalt certificerede World Trade Center Ballerup udbydes nu et rummeligt og funktionelt kontorlejemål på 357 m², ideelt til virksomheder, der ønsker et professionelt miljø med adgang til førsteklasses faciliteter og et stærkt erhvervsnetværk.

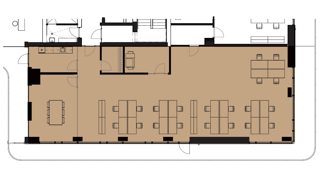
Lejemålet består af ét stort, lyst og åbent kontorareal, der giver optimale muligheder for fleksibel indretning – uanset om virksomheden ønsker et dynamisk kontorlandskab, projektzoner eller teamområder. Hertil kommer tre mindre lokaler, der kan anvendes som mødelokaler, stillerum eller individuelle kontorer.

Lejemålet er desuden udstyret med eget køkken, perfekt til både frokostpauser og uformelle møder, mens der findes fælles toiletter lige uden for døren på gangen.

Som en del af World Trade Center Ballerup får I adgang til et moderne flerbrugerhus på 38.000 m² med alle tænkelige faciliteter: Restaurant, fitnesscenter, bemandet reception, møde- og konferencefaciliteter, Healthcare Center og servicerede lejligheder – alt samlet under ét tag.

Her arbejder startups, scaleups og store etablerede virksomheder side om side og deler både faciliteter og idéer. Det skaber synergi, fleksibilitet og netværk, der kan mærkes på væksten og bundlinjen.

Med sin placering i et af Danmarks største og bedst forbundne erhvervsområder, tæt på både motorvejsnettet og offentlig transport, tilbyder WTC Ballerup en central og professionel base for virksomheder med nationale og internationale ambitioner.

Som certificeret World Trade Center får I samtidig adgang til et globalt netværk med mere end 300 centre i over 90 lande – en unik mulighed for virksomheder, der ønsker at udvide deres horisont og åbne dørene til nye markeder.

Moderne kontor med udsigt over Storkøbenhavn

Udlejet

Borupvang 3,
2750 Ballerup

Sagsnummer: H6.3

Kontor

357 m²

Etage: 6

Pladser: 18 (max)

Adgang til mødelokaler

Bæredygtighedscertifikat DGNB – Silver

Energimærke A(2010)

Leje fra

(ekskl. drift og forbrug)

1425

DKK pr. m²

Driftsomkostninger (anslået)

280 kr. pr. m² p.a.

Varmeudgifter (anslået)

50 kr. pr. m² p.a.

Eludgift til ventilation/køl (anslået)

22 kr. pr. m² p.a.

Depositum

6 måneders leje

Momspligtigtig

Ja, alle priser tillægges moms

Årlig regulering af lejen

Nettoprisindex, dog min. 2%

Opsigelsesvarsel

6 måneder

Henriette Bjerg Persson

Direktør / CEO

Moderne kontor med udsigt over Storkøbenhavn

Udfyld nedenstående. Så kontakter vi dig mhbp. en fremvisning.