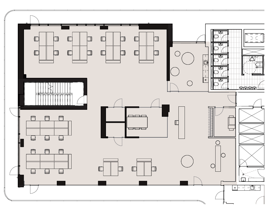
Stort kontorlejemål på 607 m² – plads til vækst og samarbejde

I det attraktive og internationalt certificerede World Trade Center Ballerup udbydes nu et rummeligt kontorlejemål på 607 m², ideelt til virksomheder med op til 32 medarbejdere, der ønsker et moderne og fleksibelt arbejdsmiljø.

Lejemålet består af et stort, lyst og åbent kontorområde, som giver optimale muligheder for effektiv arbejdspladsindretning og teamzoner. Hertil kommer seks mindre rum, perfekte som mødelokaler, stillerum eller private kontorer. Lejemålet har desuden eget køkken, mens fælles toiletter findes på gangen.

Som del af World Trade Center Ballerup får I adgang til et moderne flerbrugerhus på 38.000 m² med alle tænkelige faciliteter: Restaurant, fitnesscenter, bemandet reception, møde- og konferencefaciliteter, Healthcare Center og servicerede lejligheder – alt samlet under ét tag.

Her arbejder startups, scaleups og store virksomheder side om side, deler idéer og skaber et unikt netværk. Den professionelle atmosfære kombineret med fleksible løsninger giver grobund for både samarbejde og vækst.

Med sin centrale beliggenhed i et af Danmarks største erhvervsområder og med nem adgang til både motorvejsnet og offentlig transport, tilbyder WTC Ballerup en ideel base for virksomheder med nationale og internationale ambitioner.

Som certificeret World Trade Center bliver I samtidig en del af et globalt netværk med over 300 centre i mere end 90 lande, hvilket åbner dørene til nye markeder og internationale samarbejdsmuligheder.

Stort kontorlejemål på 607 m² – plads til vækst og samarbejde

Ledigt

Borupvang 3,
2750 Ballerup

Sagsnummer: H1.1

Kontor

607 m²

Etage: 1

Pladser: 32 (max)

Adgang til mødelokaler

Bæredygtighedscertifikat DGNB – Silver

Energimærke A(2010)

Overtagelsestidspunkt: Efter aftale

Leje fra

(ekskl. drift og forbrug)

1425

DKK pr. m²

Driftsomkostninger (anslået)

280 kr. pr. m² p.a.

Varmeudgifter (anslået)

50 kr. pr. m² p.a.

Eludgift til ventilation/køl (anslået)

22 kr. pr. m² p.a.

Depositum

6 måneders leje

Momspligtigtig

Ja, alle priser tillægges moms

Årlig regulering af lejen

Nettoprisindex, dog min. 2%

Opsigelsesvarsel

6 måneder

Henriette Bjerg Persson

Direktør / CEO

Stort kontorlejemål på 607 m² – plads til vækst og samarbejde

Udfyld nedenstående. Så kontakter vi dig mhbp. en fremvisning.